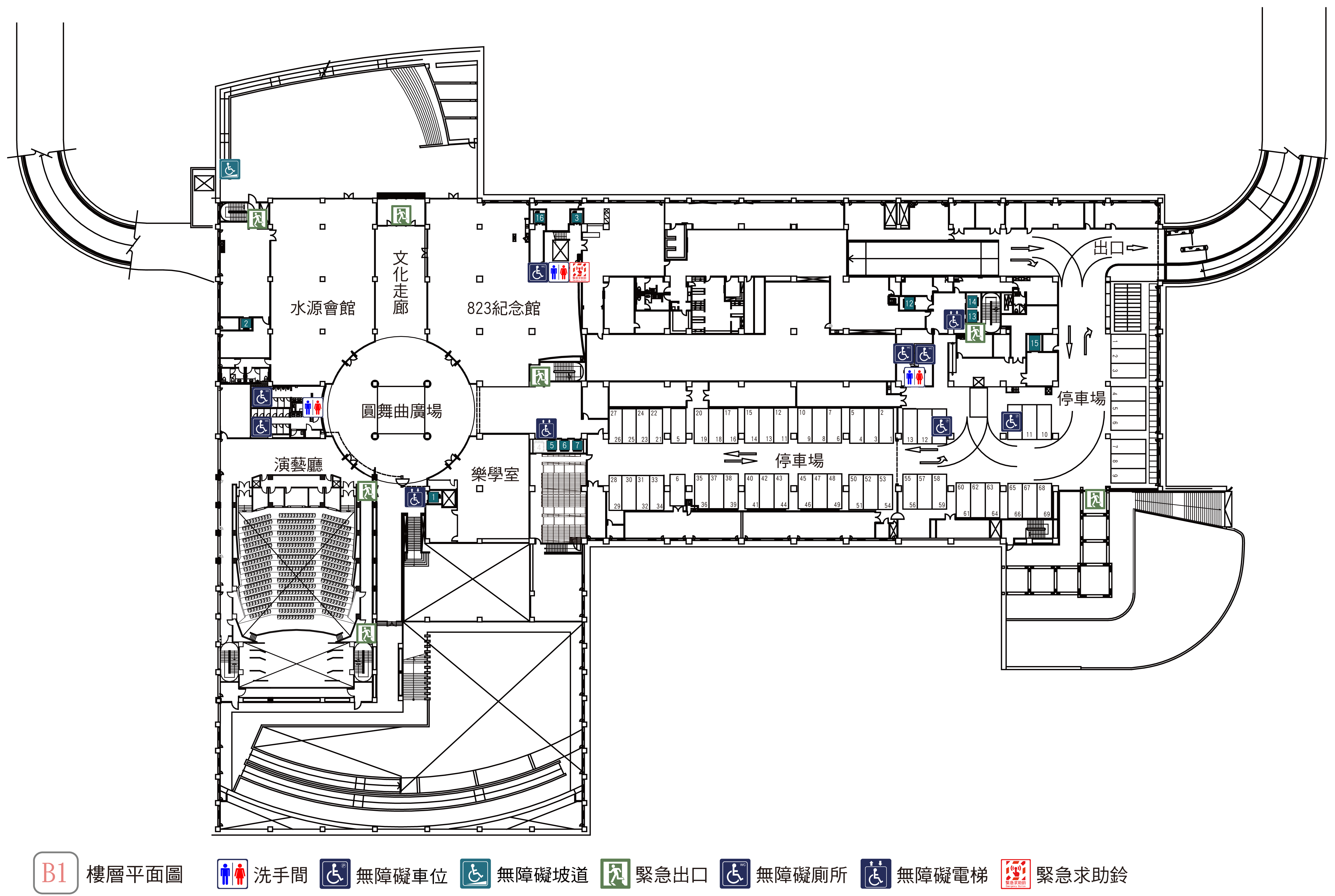
B1樓無障礙設施
- 更新日期:2017/07/07
- 總點閱次數:804
- 無障礙電梯:本館設有無障礙電梯四部,分別位於本館視障資料中心內3號電梯、中和門5號電梯與講演廳1號電梯及新生門行政區13號電梯,提供行動不便之讀者與來賓使用。
- 無障礙廁所:本館各讀者服務空間皆設有男/女無障礙廁所各一間,提供行動不便之讀者與來賓使用。
- 緊急求救鈴:本館各讀者服務空間廁所裡皆設有緊急求救鈴,提供緊急狀況時求救使用。
- 火警連動:當火災發生時,火災警報訊號立即透過雙訊無線發報主機發送到火警區內各廁間推動現場的閃光警鈴動作,以達到通知視障、聽障讀者。
您對此頁內容如有意見,可透過意見回報反映給我們
